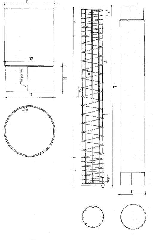
Technische gegevens hoogwaardig beton segment paal
zie tekening, maten in mm overigens conform NEN 3880 en NEN 7053 |
||||
| diameter | D | 280 | 280 | |
| lengte paalelement | L | 1000 | 1000 | |
| of 2000 | of 2000 | |||
| of 3000 | ||||
| 1. specificaties betonelement | ||||
| dekking op spiraalwapening | q | 25 | 25 | |
| minimale diameter langsstaven | p | 8 | 8 | |
| aantal langsstaven | 8 | 8 | ||
| staalkwaliteit langswapening | FeB500HK | FeB500HK | ||
| maximale spoed spiraal aan uiteinde | Sx,Sy | 50 | ||
| lengte gedeelte kleinste spoed | x,y | 300 | ||
| maximale spoed | Sz | 100 | ||
| diameter spiraal | U | 4,5 | ||
| aantal beugels | 9 | |||
| diameter beugels | 6 | |||
| betonsterkteklasse | B55 | B80 | ||
| cementsoort | CEM1 | |||
| 2. maattoleranties betonelement | ||||
| diameter D betonelement | -10/+10 | -10/+10 | ||
| diameters taps gedeelte | -1/+1 | -1/+1 | ||
| lengte W van de koppelbuis | -4/+4 | -4/+4 | ||
| haaksheid paalkop | tan B | 0,01 | 0,01 | |
| dekking q op wapening | -5/+10 | -5/+10 | ||
| 3. verbinding | ||||
| de verbindingsbuizen nabij of boven de
grondwaterspiegel (doorgaans de verbinding tussen de bovenste twee elementen van de paal) worden tegen corrosie beschermd m.b.v. een polyetheen-bekleding |
||||
| uitwendige diameter koppelbuis | ||||
| lengte koppelbuis | H | 273 | 273 | |
| kleinste diameter taps gedeelte | W | 270 | 270 | |
| grootste diameter taps gedeelte | D1 | 263 | 263 | |
| lengte taps gedeelte van de paal | D2 | 267 | 267 | |
| N | 138 | 138 | ||
| 4. mechanische eigenschappen | ||||
| rekenwaarde draagkracht paalschacht | in alle gevallen wordt de rekenwaarde draagkracht bepaald door de bodemgesteldheid | |||
| toelaatbare trekkracht | -- | -- | ||
| toelaatbaar moment | afhankelijk van de toepassing | |||
wijzigingen voorbehouden